【2/22(日) 1日限りの限定開催!】 川口市栄町 土地先行販売会

人気の川口市栄町エリアで、土地を探されている方必見!特別な「土地先行販売会」を、2月22日(日)の1日限定で開催いたします。

イベントのポイント

  • 「事前予約なし」でOK!お散歩や買い物のついでにフラッとお立ち寄りください。
  • ネットには載っていない!「ここだけの情報」をご用意しています。
  • 参考プラン公開!図面を見ながら理想の暮らしを具体的にイメージできます。

開催概要

開催日: 2026年2月22日(日)
時間: 10:00〜17:00
場所: 埼玉県川口市栄町2-9-2

物件概要

敷地面積: 103.75㎡ (31.38坪)
用途地域: 準工業地帯
建蔽率・容積率: 60%/200%

1階平面図
2階平面図
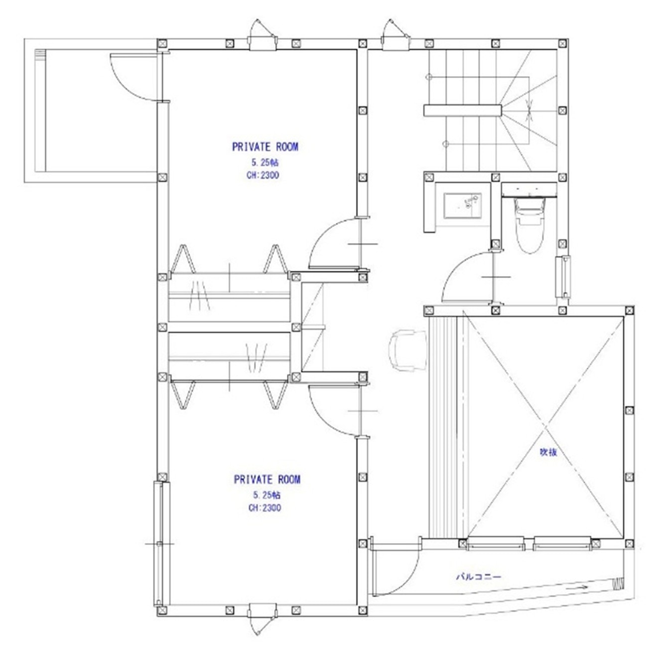
3階平面図
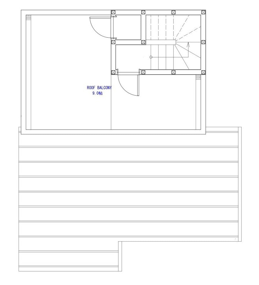
R階平面図

参考プラン概要

階数: 3階建て(2階+ルーフバルコニー)
1階床面積: 42.22㎡
2階床面積: 41.41㎡
3階床面積: 31.88㎡
延べ床面積: 115.51㎡ (34.87坪)


私たちスタッフが笑顔で皆さまをご案内いたします!
皆様のご来場を心よりお待ちしております!

お問い合わせ先

株式会社スカイフィールドコーポレーション 担当: 夏
連絡先:l-ka@sky-field.co.jp
電話番号:03-5960-7400

グループ会社

▼建築市場公式ホームページ
https://kenchiku-ichiba.co.jp/
▼建築市場 公式Instagram
https://www.instagram.com/kenchiku_ichiba/

Click!入力必須